Woonoppervlakte
Circa 169 m²
Perceeloppervlakte
Circa 139 m²
Bouwjaar
Gebouwd in 2003
Aantal kamers
8 kamers (5 slaapkamers)

Aldegondaplantsoen 15

6226 AG, Maastricht (Limburg)

MAASTRICHT (Scharn) - Fraaie uitgebouwde A+ en instapklare eengezinswoning met 5 slaapkamers, 9 zonnepanelen, eigen carport/parkeerplaats én een vrij uitzicht over het groene Aldegondaplantsoen op slechts 5 fietsminuten van het treinstation en binnenstad van Maastricht.
Deze in 2022 op de 2e verdieping uitgebouwde tussenwoning is zorgvuldig onderhouden en ideaal voor wie comfortabel wil wonen in een kindvriendelijke omgeving met alle voorzieningen in de buurt.

INDELING
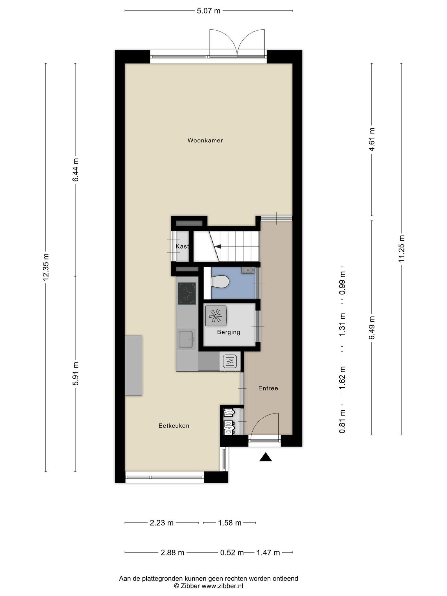
Begane grond:
Entree/hal (ca. 9 m²) met meterkast, half betegeld toilet (ca. 2 m²) met zwevend closet en fonteintje, separate berging met witgoedaansluiting (ca. 2 m²). Vanuit de hal zijn er twee toegangsdeuren naar de woonkamer aan de tuinzijde en woonkeuken met vide aan de voorzijde van de woning.
De woonkeuken aan de voorzijde (ca. 17 m²) heeft een open vide naar de 1e etage en is voorzien van een parallelle keukenopstelling d.d. 2020, voorzien van een granieten werkblad, RVS-spoelbak, 4-pits inductieplaat, koelkast, vaatwasser en oven, de trapkast is handig in gebruik als provisiekast/berging.
Vanuit de woonkeuken is de doorloop naar de achterzijde van de woning waar de woonkamer (ca. 26 m²) is gelegen, voorzien van airconditioning d.d. 2023 en met zicht op de achtertuin op het westen met directe toegang naar buiten.

Eerste verdieping:
Overloop met toegang tot een ruime slaapkamer (ca. 15 m²) aan achterzijde, een multifunctionele ruime (ca. 24 m²) met vide en een ruime tussengelegen complete badkamer (ca. 7 m²), volledig betegeld en voorzien van ligbad, douche, dubbele wastafels en tweede toilet.

Tweede verdieping:
In 2022 aan achterzijde ca. 25 m² uitgebouwd met 2 extra slaapkamers.
Via vaste trap te bereiken met overloop met toegang tot totaal vier slaapkamers (ca. 7, 11, 9 en 12 m²), en een stookruimte met HR CV-combiketel (d.d. 2019, eigendom) en WTW-unit (d.d. 2003, eigendom).
De slaapkamer rechtsvoor beschikt over een vaste kastenwand. De grootste slaapkamer rechtsachter heeft een muurkast met witgoedaansluiting/wasmachine afvoer.

BUITEN
De onderhoudsvriendelijke achtertuin is gelegen op het westen, bestaat gedeeltelijk uit een betegeld terras, grasmatten en diverse borders met beplanting.
Aan de achterzijde is een stenen berging (ca. 9 m²) met elektra en een achterom naar de eigen parkeerplaats met carport, bereikbaar vanuit het achtergelegen Aldegondapad.

OMGEVING
De woning ligt op een uitstekend bereikbare, rustige groene locatie in de wijk Scharn-Noord. Een fijne woonomgeving met scholen, winkels, sportvoorzieningen, niet ver van NS-treinstation en met uitvalswegen in de directe nabijheid. Ook het stadscentrum van Maastricht is binnen enkele minuten bereikbaar.

BIJZONDERHEDEN
- Ca. 169 m² woonoppervlak;
- Gelegen aan groot speelplantsoen met vrij uitzicht;
- Energielabel A+ geldig tot d.d. 20-03-2035;
- In 2022 voorzien van 9 zonnepanelen, 3500Wp;
- 5 slaapkamers, voorzien van laminaatvloer;
- Woonkamer voorzien van parketvloer en airconditioning;
- Elektrisch bedienbare buitenjaloezieën aan de voorzijde;
- Alle slaapkamers voorzien van rolluiken;
- In 2022 nieuwe binnendeuren in de gehele woning en radiatoren op de benedenverdieping geplaatst;
- Tuin op het westen met berging, carport en achterom;
- Buitenschilderwerk d.d. 2024, tuin aangelegd in 2021;
- Gunstige ligging nabij diverse voorzieningen en stadscentrum van Maastricht.

LEVERING en AANVAARDING
In overleg, in huidige staat.

BEZICHTIGING
Uitsluitend op afspraak via makelaarskantoor TIM Vastgoed, tel. 043-3506900.

Voetnoot:
ONDERHOUD
De vermelde staat van onderhoud en beoordeling van de bouwkundige toestand is op basis van visuele waarnemingen door de makelaar en informatie van de verkoper middels de door hen ingevulde vragenlijst welke bij de makelaar is op te vragen.

AANSPRAKELIJKHEID
Hoewel gestreefd is naar een zo zorgvuldig mogelijke weergave van de beschikbare gegevens, moet er van uitgegaan worden dat deze brochure slechts indicatief is. De vermelde gegevens (bedragen, jaartallen, omschrijvingen etc.) zijn onder andere verkregen door mondelinge overdracht. Wij attenderen de kopers er op dat, ondanks het verstrekken van deze verkoopinformatie en de vragenlijst, de koper een eigen onderzoeksplicht heeft.

KOOPAKTE
De koopovereenkomst wordt opgesteld volgens model Vastgoed Nederland/NVM. Verkoper stelt uitdrukkelijk dat een koop alleen tot stand komt als over alle hoofdzaken (zoals koopsom) en over de details (zoals oplevering) overeenstemming is bereikt, kopers kunnen (laten) aantonen dat zij onderzoek hebben verricht naar de financiële haalbaarheid van hun aankoop en de overeenstemming schriftelijk is vastgelegd in een koopovereenkomst die door koper en verkoper ondertekend is.

ONTBINDING
De termijn die wordt opgenomen voor eventuele (overeengekomen) ontbindende voorwaarden (b.v. financiering) is in de regel 6 weken na het ondertekenen van de koopovereenkomst.

ZEKERHEIDSTELLING
De waarborgsom/bankgarantie is 10% van de koopsom. De koper dient deze binnen 2 weken na einde voorbehoud(-en) bij de desbetreffende notaris te deponeren.

Wij vertrouwen erop u hiermee correct te hebben geïnformeerd en hopen u enthousiast te hebben gemaakt voor deze woning.
Kom kijken en overtuig u zelf, want pas tijdens een bezichtiging ervaart u de woning en kunt u voelen of de woning bij u past.

Hartelijk dank voor uw belangstelling en graag tot ziens.
TIM Vastgoed - Thuis In Makelaardij
Tel. 043-3506900

Plattegronden

Overdracht

Vraagprijs
€ 595.000 k.k.
Status
Verkocht
Aanvaarding
In overleg

Bouw

Object type
Eengezinswoning, tussenwoning
Soort bouw
Bestaande bouw
Bouwjaar
2003
Soort dak
Plat dak bedekt met bitumineuze dakbedekking

Oppervlakte en inhoud

Woonoppervlakte
169 m²
Perceeloppervlakte
139 m²
Inhoud
600 m³
Externe bergruimte
9 m²

Indeling

Aantal kamers
8 kamers (5 slaapkamers)
Aantal badkamers
1 badkamer
Badkamervoorzieningen
Ligbad, toilet, douche, dubbele wastafel, wastafelmeubel
Aantal woonlagen
3 woonlagen
Voorzieningen
Mechanische ventilatie, buitenzonwering, airconditioning, zonnepanelen, balansventilatie

Energie

Energielabel
A
Energielabel registratie
20-03-2025
Isolatie
Dakisolatie, muurisolatie, vloerisolatie, volledig geïsoleerd, hr glas
Verwarming
Cv-ketel, warmte terugwininstallatie
Warm water
Cv-ketel
Cv ketel
Hr combiketel gas gestookt uit 2019 (eigendom)

Buitenruimte

Ligging
Aan park, in woonwijk, vrij uitzicht
Tuin
Achtertuin
Afmetingen achtertuin
55 m² (13.45 meter diep en 5.4 meter breed)
ligging tuin
Gelegen op het westen en en bereikbaar via achterom

Bergruimte

Schuur / berging
Vrijstaand steen
Voorzieningen
Voorzien van elektra

Garage

Soort garage
Carport

Parkeergelegenheid

Soort parkeergelegenheid
Openbaar parkeren, betaald parkeren, parkeervergunningen, op eigen terrein

Energieverbruik in Maastricht

Energielabel deze woning

Energielabel A

Publicatie energielabel: 20-03-2025

Stroomverbruik per jaar

2860 kWh

(Gemiddelde tussenwoning in Maastricht)

Gasverbruik per jaar

1210 m³

(Gemiddelde tussenwoning in Maastricht)

* Cijfers zijn afkomstig van het CBS en bedoeld als indicatie en kunnen verschillen voor deze woning

Indicatie hypotheeklasten

Eigen inleg:
Spaargeld / overwaarde

Rente:
Laagste 10-jaars rente

Laagste 10-jaars rente

2,76% - Centraal Beheer Groen... - NHG


2,98% - Centraal Beheer Groen... - 80%

Laagste 20-jaars rente

3,19% - Centraal Beheer Groen... - NHG


3,31% - Centraal Beheer Groen... - 80%

Laagste 30-jaars rente

3,34% - Centraal Beheer Groen... - NHG


3,47% - Centraal Beheer Groen... - 80%


Hypotheek:

Bruto maandlasten: € 0 p/m

Netto maandlasten: € 0 p/m

Hoe berekenen we dit?

Het rentepercentage is gebaseerd op de laagste 10-jaars vaste rente voor één hypotheekdeel. De vermelde rente (2.98% zonder NHG) is gecontroleerd op 12-08-2025. Deze berekening is gebaseerd op een annuïteitenhypotheek die volledig wordt afgelost, waarbij de maandlasten gedurende de gehele looptijd gelijk blijven. De werkelijke rente en netto maandlasten kunnen variëren, afhankelijk van uw persoonlijke situatie en de hypotheekverstrekker. Raadpleeg een financieel adviseur voor een nauwkeurige berekening en advies. Aan deze berekening kunnen geen rechten worden ontleend; het dient enkel als indicatie.

Documentatie

Zonnegrenzen bekijken

Op de kaart

Inwoners in Maastricht

Cijfers voor postcodegebied 6226

Totaal aantal inwoners
7320 inwoners
Mannen
48%
Vrouwen
52%

Inwoners in Maastricht

Cijfers voor postcodegebied 6226

tot 15 jaar
14%
15 tot 25 jaar
17%
25 tot 35 jaar
22%
45 tot 65 jaar
28%
65 en ouder
19%

Huishoudens in Maastricht

Cijfers voor postcodegebied 6226

Eenpersoons zonder kinderen
48%
Meerpersoons zonder kinderen
26%
Huishoudens zonder kinderen
74%

Huishoudens in Maastricht

Cijfers voor postcodegebied 6226

Huishoudens met één kind
6%
Huishoudens met meerdere kinderen
20%
Huishoudens met kinderen
26%

Woningen in Maastricht

Cijfers voor postcodegebied 6226

Woningen voor 1945
21%
Woningen tussen 1945 en 1965
27%
Woningen tussen 1965 en 1975
4%
Woningen tussen 1975 en 1985
15%
Woningen tussen 1985 en 1995
17%

Woningen in Maastricht

Cijfers voor postcodegebied 6226

Woningen tussen 1995 en 2005
12%
Woningen tussen 2005 en 2015
4%
Woningen na 2015
1%
Huurwoningen
40%
Koopwoningen
60%

Overige in Maastricht

Cijfers voor postcodegebied 6226

Gemiddelde WOZ waarde
€ 265.000,-
Personen onder de 65 met uitkering
9%

Overige in Maastricht

Cijfers voor postcodegebied 6226

Adressen per km²
2327
Stedelijkheid (schaal 1 op 5)
80%
Postcode kaart 6226 Gemeente kaart maastricht

Korte feiten over Maastricht

Maastricht is een stad en gemeente in het zuiden van Nederland. Het is de hoofdstad van de provincie Limburg en telt 120.837 inwoners (31 januari 2022, bron: CBS). Het is hiermee de grootste gemeente van de provincie Limburg.

Indien u vragen heeft of u wilt een bezichtiging inplannen, dan kunt u gebruik maken van het formulier hiernaast. Er zal daarna op korte termijn contact met u worden opgenomen.

Parkweg 28

6212 XN, Maastricht

043 - 350 6900 info@timvastgoed.nl www.timvastgoed.nl

Over TIM Vastgoed

TIM Vastgoed staat voor 'Thuis In Makelaardij'.

Kantooreigenaar en makelaar-taxateur Tim Schaap heeft sinds 2003 samen met zijn team een uitstekende reputatie opgebouwd in de makelaardij in Zuid-Limburg.

Dankzij hun uitgebreide expertise en op maat gemaakte marketingstrategieën weet het team van TIM Vastgoed hun Zuid-Limburgse aanbod uitstekend te presenteren, wat leidt tot succesvolle resultaten.

Het betrokken en persoonlijke contact met de teamleden die de normen en waarden van het familiebedrijf hanteren, is opvallend en onderscheidend in deze branche.

Vastgoed kopen of verkopen behoort tot de grootste financiële en emotionele investeringen in iemands leven. Het is toekomstbepalend en kan een leven een nieuwe richting geven. Bij TIM Vastgoed zijn ze zich hiervan bewust en behandelen ze dit zorgvuldig. Klanten beschrijven TIM Vastgoed als een ondernemend kantoor waar de medewerkers écht meedenken.

Door te kiezen voor TIM Vastgoed als makelaarskantoor, kies je niet alleen voor een professionele makelaar met bouwkundige expertise, maar ook voor een mensgerichte benadering.

"Onze missie is ervoor zorgen dat iedereen in zijn of haar droomhuis of bedrijfspand kan wonen of werken. We doen alles binnen onze mogelijkheden om die dromen te verwezenlijken," zegt Tim Schaap, mede-eigenaar en gecertificeerde VBO-makelaar/registertaxateur bij TIM Vastgoed.

Wil je nader kennismaken? Klik hieronder voor een korte video-introductie:

Video-introductie TIM Vastgoed
Over TIM Vastgoed
Reviews TIM Vastgoed

Aldegondaplantsoen 15, Maastricht

€ 595.000 k.k. - Verkocht

Helaas, deze woning is verkocht!

Net te laat, deze woning is al verkocht. Laat een zoekopdracht bij ons achter zodat wij u direct kunnen helpen wanneer er nieuw aanbod beschikbaar komt.